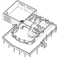
EstateSylvan Lake EstateFind InspirationA grand viewing deck spans the entire back of this four-bedroom home plan. Not only will you enjoy the views from the deck but also from the vaulted great room inside. A prow-like wall is comprised almost entirely of windows filling the room with light. A dedicated master suite loft with a balcony, one bedroom on the main, and two bedrooms on the walk-out basement level. |
![]() |
| 2nd Flr. (sq. ft.) |
|
|---|---|
| Basement (sq. ft.) |
|
| Bathrooms |
|
| Bedrooms |
|
| Combined Liveable (sq. ft.) |
|
| Deck/Patio (sq. ft.) |
|
| Depth (ft.) |
|
| Garage (sq. ft.) |
|
| Height (ft.) |
|
| Main (sq. ft.) |
|
| Stories |
|
| Type |
|
| Width (ft.) |
|
Design Your SpaceBuild a house you can call homeA dedicated team of in-house experts will help guide you through the complex process of planning, designing, purchase, and building. |
Similar Floor Plans
View more of the Estate Collection
Enjoy the look, style and quality of a custom designed home!
Take comfort in the benefits of faster construction with superior quality materials,
more cost and time control and access to a team of experts.
