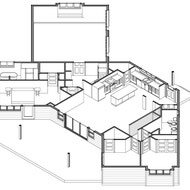
EstateAthabasca EstateFind InspirationA sprawling modern estate rancher with well-appointed living space. A split bedroom design with a luxurious master suite and a spa-like bathroom includes access to the partially covered sundeck. Building on a walk-out basement adds a family room, four additional bedrooms, and two additional bathrooms with covered patio space. |
![]() |
| Bathrooms |
|
|---|---|
| Bedrooms |
|
| Combined Liveable (sq. ft.) |
|
| Deck/Patio (sq. ft.) |
|
| Depth (ft.) |
|
| Garage (sq. ft.) |
|
| Main (sq. ft.) |
|
| Options |
|
| Stories |
|
| Type |
|
| Width (ft.) |
|
Design Your SpaceBuild a house you can call homeA dedicated team of in-house experts will help guide you through the complex process of planning, designing, purchase, and building. |
Similar Floor Plans
View more of the Estate Collection
Enjoy the look, style and quality of a custom designed home!
Take comfort in the benefits of faster construction with superior quality materials,
more cost and time control and access to a team of experts.
