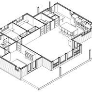
ClassicSurfsideFind InspirationThe Surfside is the perfect choice for a comfortable and relaxed atmosphere. It boasts a spacious great room with a rake wall and floor-to-ceiling windows, a master suite with deck access, a walk-in closet, an ensuite, two additional bedrooms, and a large eat-in kitchen. With plenty of natural light and ample space for cooking and relaxation, the Surfside is the epitome of comfort and style. |
![]() |
| Bathrooms |
|
|---|---|
| Bedrooms |
|
| Combined Liveable (sq. ft.) |
|
| Deck/Patio (sq. ft.) |
|
| Depth (ft.) |
|
| Height (ft.) |
|
| Main (sq. ft.) |
|
| Options |
|
| Stories |
|
| Type |
|
| Width (ft.) |
|
Design Your SpaceBuild a house you can call homeA dedicated team of in-house experts will help guide you through the complex process of planning, designing, purchase, and building. |
View More
of the Classic Collection
Enjoy the look, style and quality of a custom designed home!
Take comfort in the benefits of faster construction with superior quality materials,
more cost and time control and access to a team of experts.
