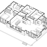
ClassicMerrittFind InspirationAttractive ceiling lines and a towering fireplace create an elegant impact in the open living space. Enjoy the views and natural light with expansive windows and glass doors. An impressive master suite with direct access to the deck, individual closets, and grand ensuite boasting two vanities and a separate tub and shower. |
![]() |
| Bathrooms |
|
|---|---|
| Bedrooms |
|
| Combined Liveable (sq. ft.) |
|
| Deck/Patio (sq. ft.) |
|
| Depth (ft.) |
|
| Height (ft.) |
|
| Main (sq. ft.) |
|
| Stories |
|
| Type |
|
| Width (ft.) |
|
Design Your SpaceBuild a house you can call homeA dedicated team of in-house experts will help guide you through the complex process of planning, designing, purchase, and building. |
View More
of the Classic Collection
Enjoy the look, style and quality of a custom designed home!
Take comfort in the benefits of faster construction with superior quality materials,
more cost and time control and access to a team of experts.
