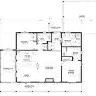
Bathrooms
  • 2
Bedrooms
  • 2
Combined Liveable (sq. ft.)
  • 1344
Deck/Patio (sq. ft.)
  • 522
Depth (ft.)
  • 32
Height (ft.)
  • 14'-8"
Main (sq. ft.)
  • 1344
Stories
  • 1
Type
  • Vineyard Collection
Width (ft.)
  • 52
File Name
  • File Name Size

A collection of Winton's most sought-after home designs. These homes reflect what buyers love most, offering comfortable living, thoughtful design, and the flexibility to make each plan your own.

Usually smaller floor plans that are fit for a vacation home, primary residence, or building for rental income. Varying in style from chalets with lofts to one-floor rancher style floor plans.

Carriage homes make a unique and versatile addition to your property. Whether you're looking for additional living space, a home office, workshop, or income potential, carriage homes offer a range of benefits.

Elegantly balanced, symmetrical designs that typically include Winton's signature prow and a large, vaulted wall of windows. A warm and relaxing open concept atmosphere where every angle of the view can be enjoyed.

A signature characteristic of this style features sharper angles and simple clean lines with open floor plans. Sloped flat rooflines with a shallow pitch, large windows or floor to ceiling windows, clerestory windows or a combination are common.

Versatile and expansive square footage homes for larger properties. Add a basement, or walk-out for extended design features, bedrooms, bathrooms and living space or create your one floor dream home with Winton's Estate line.

Designed to have multiple units and come in a variety of plans, styles, and sizes. Including duplexes and triplexes, our multi-family designs are perfect for rapid housing projects and developers looking to maximize the return on their build.

Secondary dwelling units that are small and easy to construct. They can provide a reliable rental income or support diverse multi-generational households by offering private space close to family.

One of the most common styles for its timeless appeal include gabled rooflines, porches, and symmetrically spaced windows. The interiors feature clearly defined kitchen, dining, and living spaces.

Enjoy barrier-free layouts that support effortless movement, thoughtful mobility-friendly access, and smart design features that make aging in place simple.

Send Us Your Request

PROJECT INFORMATION


Winton Homes & Cottages only services the following provinces and territories: AB, BC, MB, SK, NT, YT

CONTACT INFORMATION
How would you like us to get in touch?
Would you like to receive special offer emails and other news from Winton Homes?