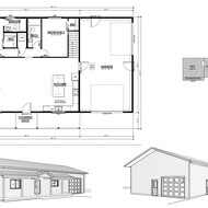
featured designsCariboo BarndominiumFind InspirationBlending rustic charm with modern convenience, the Cariboo Barndominium embraces the growing popularity of this versatile home style. An open-concept kitchen and living space flow seamlessly to a covered deck, perfect for indoor-outdoor living. The master suite with an ensuite bath offers a private retreat, while a second bedroom and spacious garage add practicality. Designed for comfort and function, this barndominium is a perfect fit for those seeking a stylish yet efficient home. |
![]() |
| Bathrooms |
|
|---|---|
| Bedrooms |
|
| Combined Liveable (sq. ft.) |
|
| Deck/Patio (sq. ft.) |
|
| Depth (ft.) |
|
| Height (ft.) |
|
| Main (sq. ft.) |
|
| Options |
|
| Stories |
|
| Type |
|
| Width (ft.) |
|
Design Your SpaceBuild a house you can call homeA dedicated team of in-house experts will help guide you through the complex process of planning, designing, purchase, and building. |
Enjoy the look, style and quality of a custom designed home!
Take comfort in the benefits of faster construction with superior quality materials,
more cost and time control and access to a team of experts.
