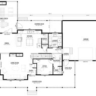
TRaditionalBrackendaleFind InspirationAn entertainer's dream with an open-concept kitchen and dining area. Outside, a screened-in porch with a fireplace and wrap-around covered deck will keep you and your guests protected from the elements. Each bedroom on the second floor has a walk-in closet and an epic ensuite complements the master bedroom. |
![]() |
| 2nd Flr. (sq. ft.) |
|
|---|---|
| Bathrooms |
|
| Bedrooms |
|
| Combined Liveable (sq. ft.) |
|
| Deck/Patio (sq. ft.) |
|
| Depth (ft.) |
|
| Garage (sq. ft.) |
|
| Height (ft.) |
|
| Main (sq. ft.) |
|
| Stories |
|
| Type |
|
| Width (ft.) |
|
Design Your SpaceBuild a house you can call homeA dedicated team of in-house experts will help guide you through the complex process of planning, designing, purchase, and building. |
View More
of the Traditional Collection
Enjoy the look, style and quality of a custom designed home!
Take comfort in the benefits of faster construction with superior quality materials,
more cost and time control and access to a team of experts.
